Limoges
Projet de rénovation d'une habitation en périphérie Liégeoise réalisé dans le cadre du cours d'Atelier II. Le programme contenait, sans s'y limiter :
- Une habitation pour une famille de 5 personnes ;
- Un atelier de Joiallerie ;
- Un atelier de micro-brasserie ;
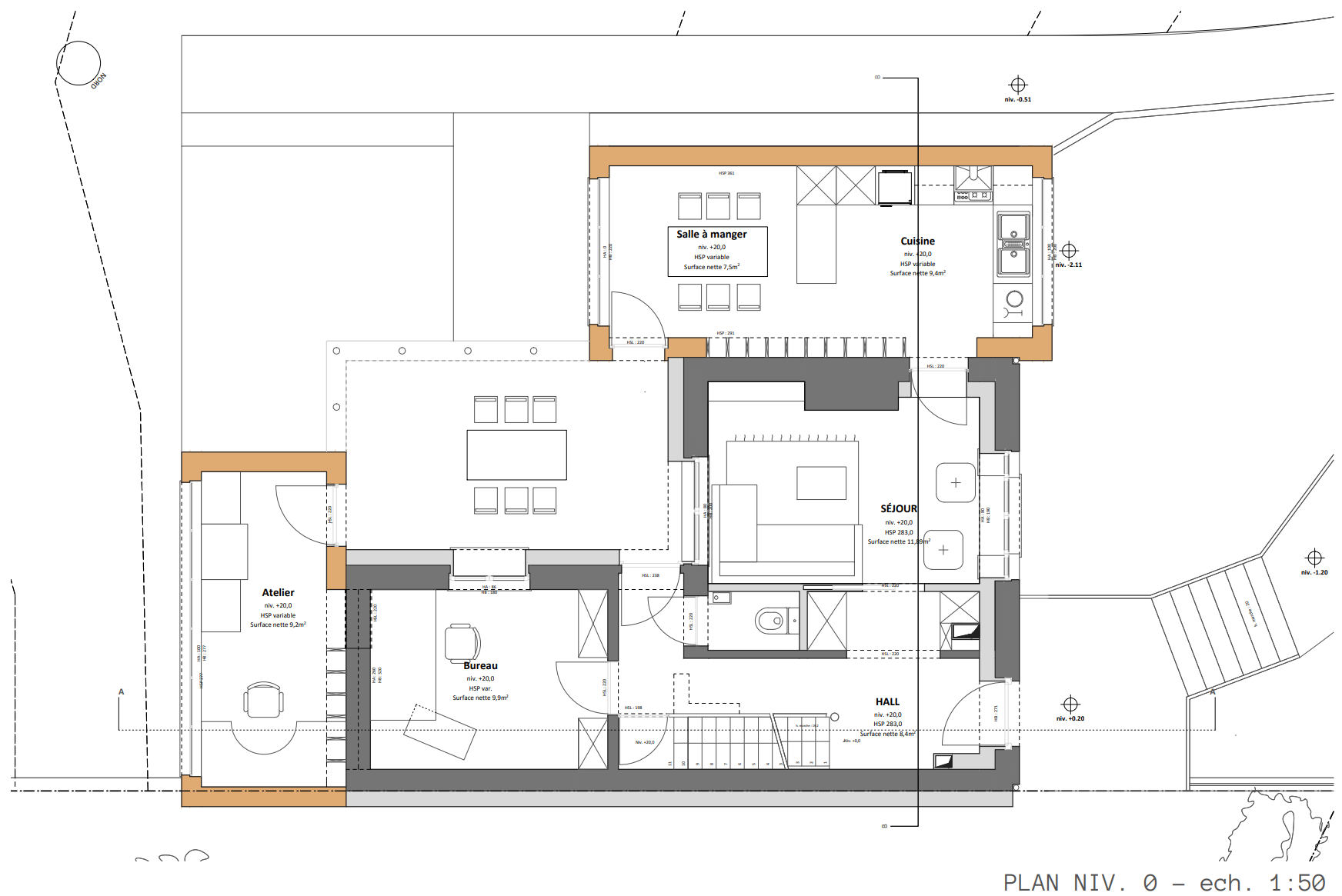
Ma proposition s'articule autour du patio central et de la construction de deux annexes, en plus de la rénovation énergétique du bâti actuel.
Le patio est central et sert de délimitation entre l'espace privé de la maison et l'atelier de joaillerie, permettant une vraie séparation entre vie privée et vie professionnelle pour l'habitante.
La première annexe vient s'implanter en lieu et place de l'ancien jardin d'hiver, accueillant une cuisine en connexion avec la rue et une salle à manger en connexion avec le jardin et le patio, afin d'offrir plus de proximité avec la nature.
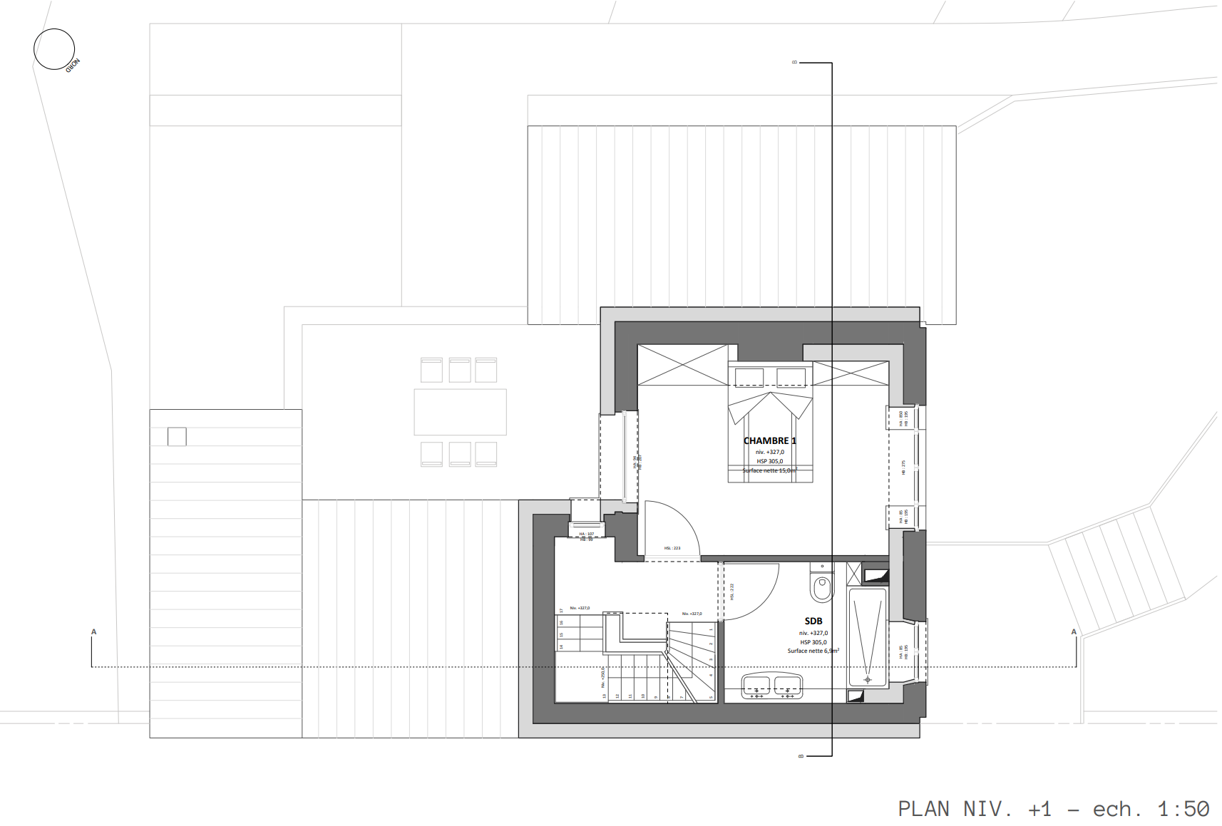
La seconde annexe permet la création de l'atelier de joaillerie, mais est pensée pour pouvoir accueillir une salle de bains. En effet, le projet a été pensé pour être évolutif. Dans un futur ou les occupants désireraient une maison de plain-pied, le bureau est prévu pour devenir une chambre, avec une porte vers la salle de bain à l'aide d'un linteau en attente.
Enfin, l'atelier de micro-brasserie exploite le volume sous la première annexe, permettant de maintenir une température fraiche tout l'année, composante essentielle de la fabricaiton de bière.











